Description
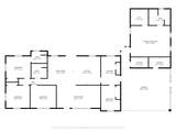
Discover the perfect blend of country living and opportunity at 2042 US Highway 77 in Lott, TX. Situated on 9.59 acres, this 1,901 sq ft brick ranch-style home offers space, functionality, and incredible potential. The property features a 2-car carport with a spacious guest suite attached, ideal for visitors, extended family, or potential rental income. Designed with versatility in mind, the property includes facilities already set up for a commercial operation, creating excellent income-producing potential. A large shop with an attached loafing area for animals provides ample workspace and livestock shelter. The land is also equipped for agricultural use with a 11' x 23' monoslope currently used for laying hens and a setup suitable for a sheep operation. Conveniently located just a short drive from Rosebud-Lott schools, this property offers the peace of rural living while remaining accessible to nearby amenities. *Roof recently replaced on 4-1-2026. Listing photos show the old roof.
-
3BEDS
-
9.59ACRES
-
2BATHS
-
11/2 BATHS
-
1,901SQFT
-
$368$/SQFT
School Information
Description
Discover the perfect blend of country living and opportunity at 2042 US Highway 77 in Lott, TX. Situated on 9.59 acres, this 1,901 sq ft brick ranch-style home offers space, functionality, and incredible potential. The property features a 2-car carport with a spacious guest suite attached, ideal for visitors, extended family, or potential rental income. Designed with versatility in mind, the property includes facilities already set up for a commercial operation, creating excellent income-producing potential. A large shop with an attached loafing area for animals provides ample workspace and livestock shelter. The land is also equipped for agricultural use with a 11' x 23' monoslope currently used for laying hens and a setup suitable for a sheep operation. Conveniently located just a short drive from Rosebud-Lott schools, this property offers the peace of rural living while remaining accessible to nearby amenities. *Roof recently replaced on 4-1-2026. Listing photos show the old roof.
