Description
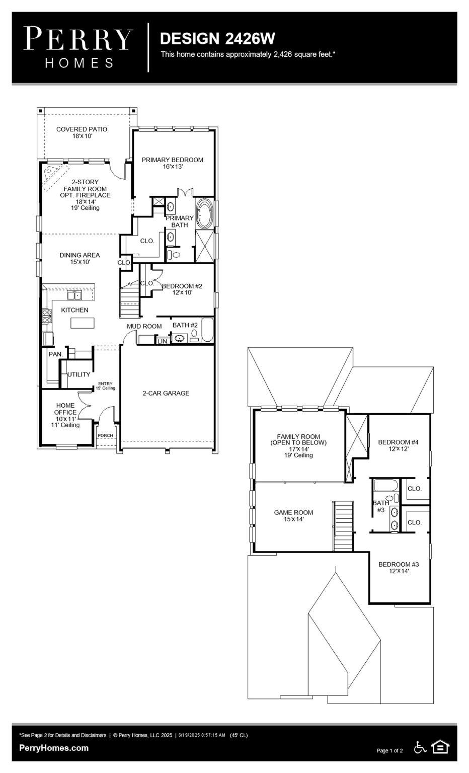
The front porch opens into the main entryway with a 11-foot ceiling. French doors open into a private home office. The utility room is conveniently located off the main living areas. A welcoming kitchen features an island with built-in seating and a 5-burner gas cooktop. The dining area boasts ample natural light. The two-story family room features a wall of windows and access to the covered backyard patio. The primary bedroom is located off the living areas. The primary suite includes dual vanities, a garden tub, a glass enclosed shower, and large walk-in closet. A private guest suite with full bathroom located off the kitchen. Upstairs you are greeted by a game room. Completing the upstairs are the secondary bedrooms with walk-in closets and a shared bathroom. The mud room is located off the two-car garage.
-
4BEDS
-
N/AACRES
-
3BATHS
-
01/2 BATHS
-
2,426SQFT
-
$206$/SQFT
School Information
Description
The front porch opens into the main entryway with a 11-foot ceiling. French doors open into a private home office. The utility room is conveniently located off the main living areas. A welcoming kitchen features an island with built-in seating and a 5-burner gas cooktop. The dining area boasts ample natural light. The two-story family room features a wall of windows and access to the covered backyard patio. The primary bedroom is located off the living areas. The primary suite includes dual vanities, a garden tub, a glass enclosed shower, and large walk-in closet. A private guest suite with full bathroom located off the kitchen. Upstairs you are greeted by a game room. Completing the upstairs are the secondary bedrooms with walk-in closets and a shared bathroom. The mud room is located off the two-car garage.
