Description
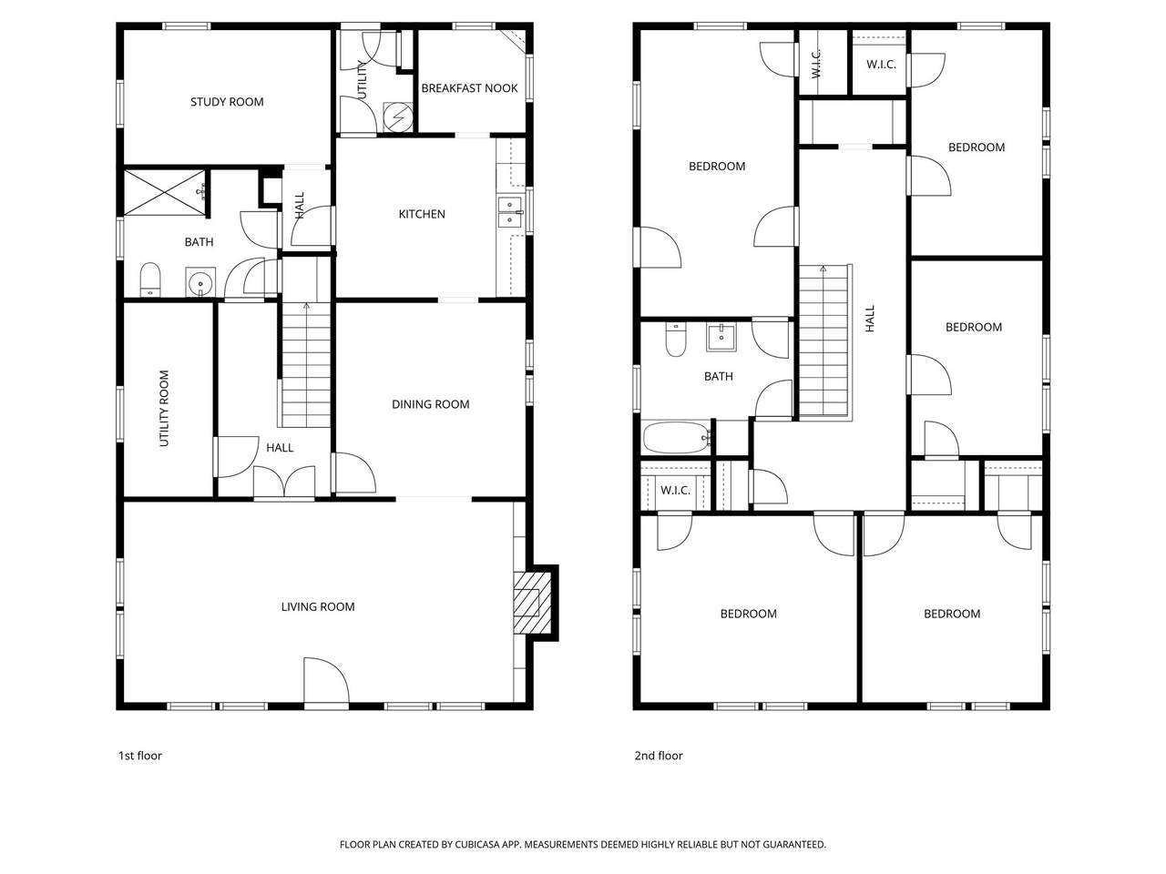
This home was once owned by a Rosenberg Mayor, per the seller. It was once very beautiful and can be again with some effort. Check the photos and/or Docs, attached, for the floor plan. The rooms are all good sizes and the layout is great. The CAD calls this a triplex. There is a large metal staircase on the exterior going up to a bedroom on the 2nd floor. It was probably leased out to 3 different families at one time. There is also what the seller calls a Print Shop in the back. The overgrowth prevented us from entering that building. The window units have been removed and boarded over where they once were. The wiring has been redone along with PEX plumbing. There are new light fixtures in boxes in some of the rooms. This is a FIXER upper. There are NO UTILITIES on. Viewing should be done during daylight hours. Most of the original wood flooring is intact. It just need to be stripped and finished. DO NOT use the Exterior Staircase. This property is AS IS WHERE IS!!
-
5BEDS
-
0.17ACRES
-
3BATHS
-
01/2 BATHS
-
2,576SQFT
-
$69$/SQFT
School Information
Description
This home was once owned by a Rosenberg Mayor, per the seller. It was once very beautiful and can be again with some effort. Check the photos and/or Docs, attached, for the floor plan. The rooms are all good sizes and the layout is great. The CAD calls this a triplex. There is a large metal staircase on the exterior going up to a bedroom on the 2nd floor. It was probably leased out to 3 different families at one time. There is also what the seller calls a Print Shop in the back. The overgrowth prevented us from entering that building. The window units have been removed and boarded over where they once were. The wiring has been redone along with PEX plumbing. There are new light fixtures in boxes in some of the rooms. This is a FIXER upper. There are NO UTILITIES on. Viewing should be done during daylight hours. Most of the original wood flooring is intact. It just need to be stripped and finished. DO NOT use the Exterior Staircase. This property is AS IS WHERE IS!!
